南宁

雅源阁

  • 视频

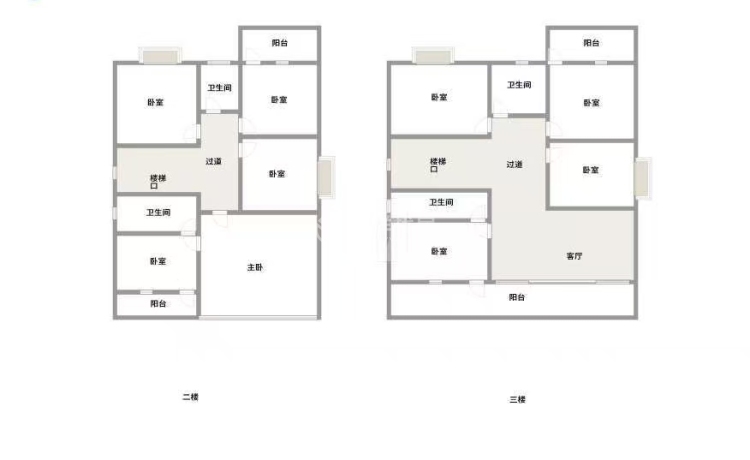
  • 户型图

  • 客厅

  • 客厅

  • 主卧

  • 卫生间

  • 厨房

  • 阳台

房源基本信息

售房状态:在售

是否法拍房:非法拍

房源来源:来访

房源介绍

房子是独栋别墅,不是住宅

带看反馈

    房源图片

    360 8695.65元/m²
    分享

    4室3厅3卫

    低楼层 共1层

    未知

    住宅

    414㎡

    -

    小区名称:雅源阁

    所在区域:青秀 仙葫片区

    看房时间:暂无

    房源编号:816881463151693824

    • 陈艺章 飞翔一队
      15607718445